

Bytové architektky napříč celým bytem velmi opatrně používají i růžovou barvu. Ta vnáší do interiéru po malých krůpějích živost.


Zelená sedací pohovka umístěná na pozadí z pohledového betonu evokuje obraz bochánků mechu na skále.


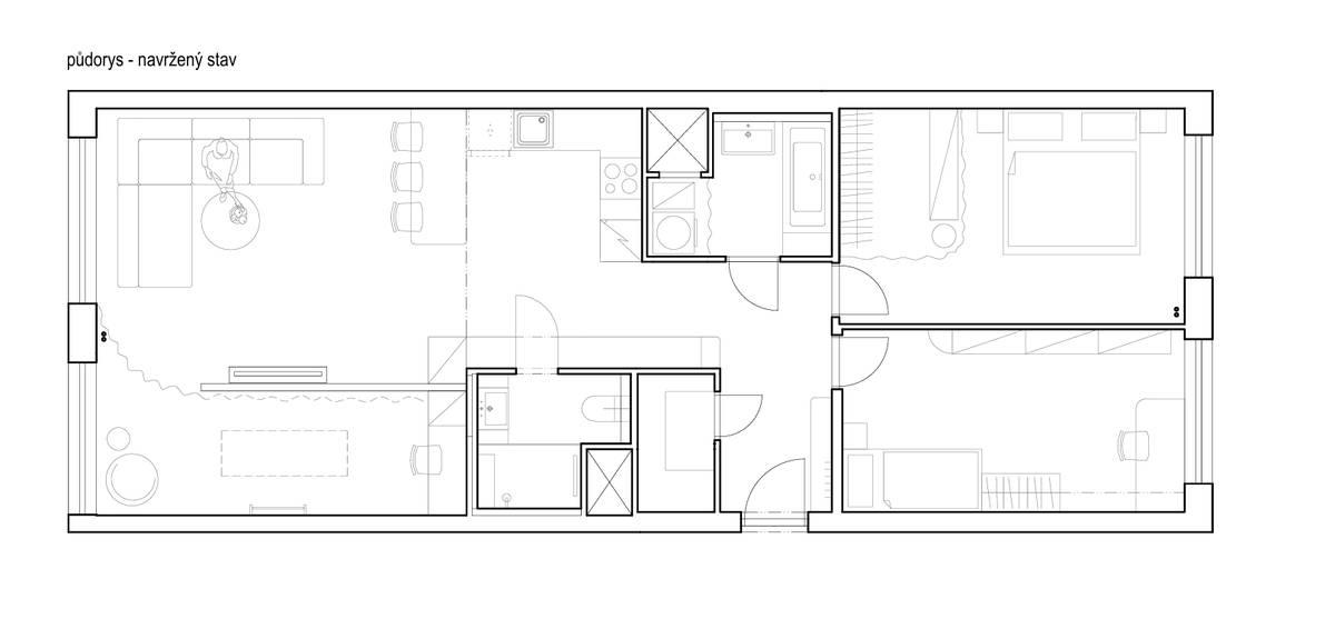
Za stěnou ze skleněných tvárnic, tzv. copilitů, se ukrývá pracovna, kterou však lze využívat i pro cvičení.


Skleněné tvárnice s jemně nazelenalou barvou daly projektu jméno - U vodopádu.


Hezkým nápadem je motiv květů přenesený přímo na betonovou zeď.


Surovost betonového povrchu zjemňují bytové architektky mj. pomocí textilií.


Pro relaxaci při koupání má rodina možnost využít velkou vanu ve druhé koupelně.


Lavice, která je vložená přímo do sprchového koutu, je velmi praktická.


Obklady dodávají koupelně atmosféru přírodního prostředí.


Praktickým rysem nové podoby bytu je příjemné množství úložných prostorů.
2/12


