

Díky umístění staveb ve svahu mají majitelé nádherné výhledy do krajiny.


Valašská roubenka působí tradičně, ale je vybavená technologiemi.


Sedlový vikýř připadal Jarkovi hezčí a poskytuje také výjimečný prostor v galerii.


Všechny stavby jsou už hotové, zbývá už jen zpevnit příjezdovou cestu.


Na terase orientované na sever není vedro a protější svah mají krásně osvětlený.


Na střeše stodoly je umístěná fotovoltaika, protože jde o nejslunnější místo.


Návštěvy jsou ubytované přímo nad venkovním posezením – na místě původního seníku.


Prostor mezi hlavní budovou a letním domkem je vydlážděný místními kameny.


Valašská roubenka vypadá díky venkovnímu osvětlení kouzelně i v noci


Detail nádherného kování na jedné ze staveb


Ukázka rohového spoje u roubenky


V letním domku je kromě zastřešeného posezení také venkovní kuchyně a WC.


Ohledně interiérů měli majitelé jasno – dřevo, kámen, černá, modrá a bílá barva.


Ze zádveří se vstupuje do hlavní obytné části domu.


V technické místnosti se mimo jiné technologie nachází i tepelné čerpadlo.


V zimě díky kachlovým kamnům stačí k vytopení domu pouze jeden koš dřeva denně.


Nádherná kachlová kamna mají odstín holubí modř.


Z hlavní obytné místnosti se dá vyjít na malou krytou terasu, tzv. podsínek.


„Chtěli jsme velké okno a propojení s okolní přírodou,“ říká majitelka Míša.


Majitelé chtěli stavbu propojenou s přírodou.


„Kuchyni jsem si přála bez horních skříněk, aby prostor nepůsobil zaplněně,“ vysvětluje Míša.


Celá kuchyně je v bílé a černé barvě, čímž perfektně zapadá do designu roubenky.


Celá hlavní obytná místnost nabízí majitelům krásné panoramatické výhledy.


Dřevo není z interiérové strany ničím natřené.


V koupelně v přízemí je prostorný sprchový kout.


I koupelna ladí s celkovým designem a kombinuje dřevo s černou, bílou a modrou barvou.


V přízemí valašské roubenky je i sauna.


Impozantní dřevěné schodiště odděluje kuchyň s jídelnou od obývací části.


Díky otevřené galerii vytopí kachlová kamna spolehlivě i podkroví.


I podkroví je z plnohodnotných masivních trámů.


Vedle schodů je z rámu a výpletu vytvořená lehací síť.


„Jediné, co je uvnitř slyšet, jsou zvuky okolního lesa a zpívající ptáci při probuzení,“ pochvaluje si Jarek.


Díky plechové střeše mohou majitelé při dešti naslouchat uklidňujícímu ťukání kapek.


Masivní postel v ložnici je vyrobená ze dřeva borovice limby, která úžasně voní a její silice jsou léčivé.


Podlaha v podkroví je drážkovaná – je to velice příjemné na chození, horší však na údržbu.


Majitelé chtěli trámy ponechat viditelné.


Podkrovní koupelna je designově dotažena a promyšlena.


V podkrovní koupelně se nachází i WC.


Zajímavým detailem jsou bílé keramické vypínače uvnitř roubenky.


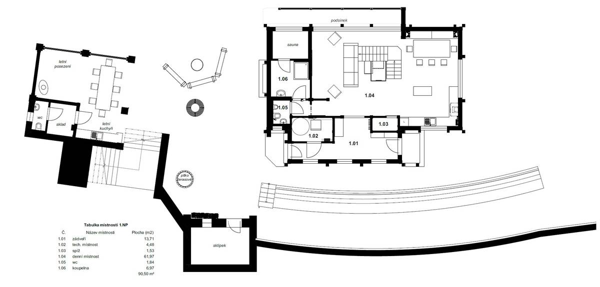
Půdorys 1. nadzemního podlaží


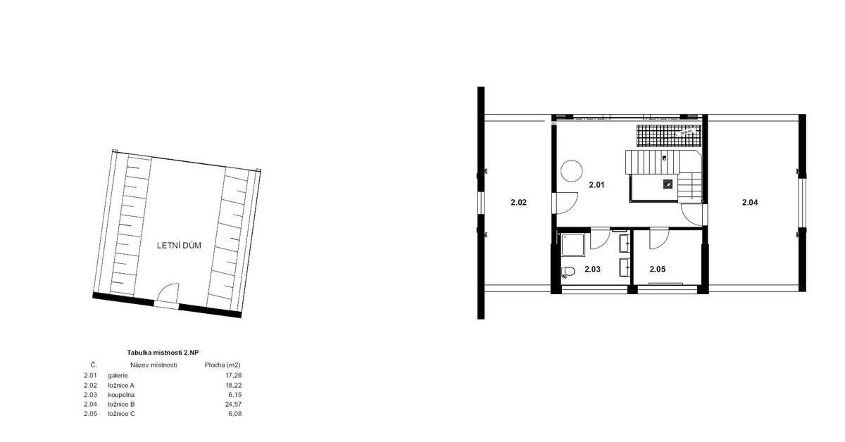
Půdorys 2. nadzemního podlaží
32/41

