

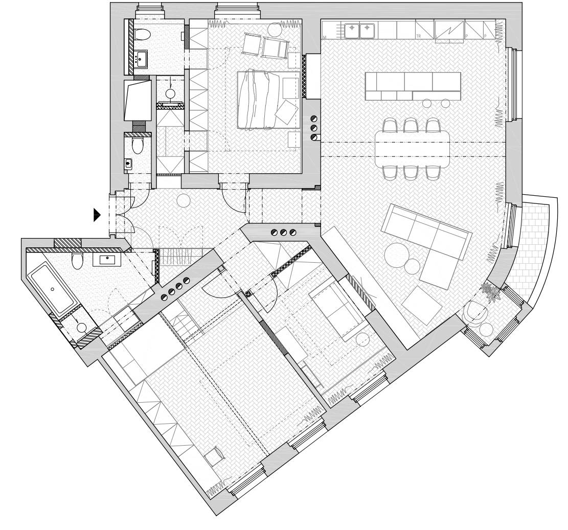
Velký obývací prostor vznikl spojením dvou místností - obývacího pokoje a jídelny.


V bytě je příjemná dřevěná podlaha.


Horní skříňky kuchyně jsou řešeny bezúchytkově, spodní mají černá podlouhlá madla.


V interiéru je hezky zkombinovaná bílá barva, dřevo a tmavě modré prvky.


Architekt má raději menší ložnice s dostatkem úložných prostor.


„V interiérech máme rádi ucelené plochy jako zdi obložené dřevem se skrytými průchody nebo průchozí skříně z koupelen do ložnic,“ prozrazuje architekt.


Dětský pokoj je zařízený hravě a přitom velice vkusně.


Skříňky a poličky jsou vyrobené na míru z tmavě modré lakované dýhy.


Architekti do bytu přidali jednu novou koupelnu.


Tmavě modrá je v koupelnách zastoupena úložnými prostory.


Předsíň, pohled ke vstupním dveřím


Oblé tvary typické pro předsíň dodržuje i taburet v tmavomodré barvě.
8/15


