

Terasu u domu mají navrženou směrem ke komunikaci, nicméně díky tomu, že je dům umístěný v zadní části pozemku, nemají narušené soukromí.


Díky fotovoltaice nezůstali odkázaní na okolí – dům i chalupa jedou čistě na elektřinu, a když vypadne síť, prakticky to ani nepoznají.


Posunuli dům více dozadu. Dvanáct metrů na každou stranu od vysokého napětí platí stavební uzávěra, a navíc se tam táhne i zaizolované nízké napětí na sloupech.


„Když stavíte v šedesáti, je to jiné, než když stavíte ve třiceti. Už máte jiné preference,“ říká Jiří, majitel domu.


„Měli jsme topení na plyn, ale já toho nejsem zastánce – je to pro mě nevyzpytatelné, elektřina je pro mě trochu předvídatelnější,“ říká Jiří.


Dům si navrhovali sami – nespolupracovali s architektem ani bytovým designérem.


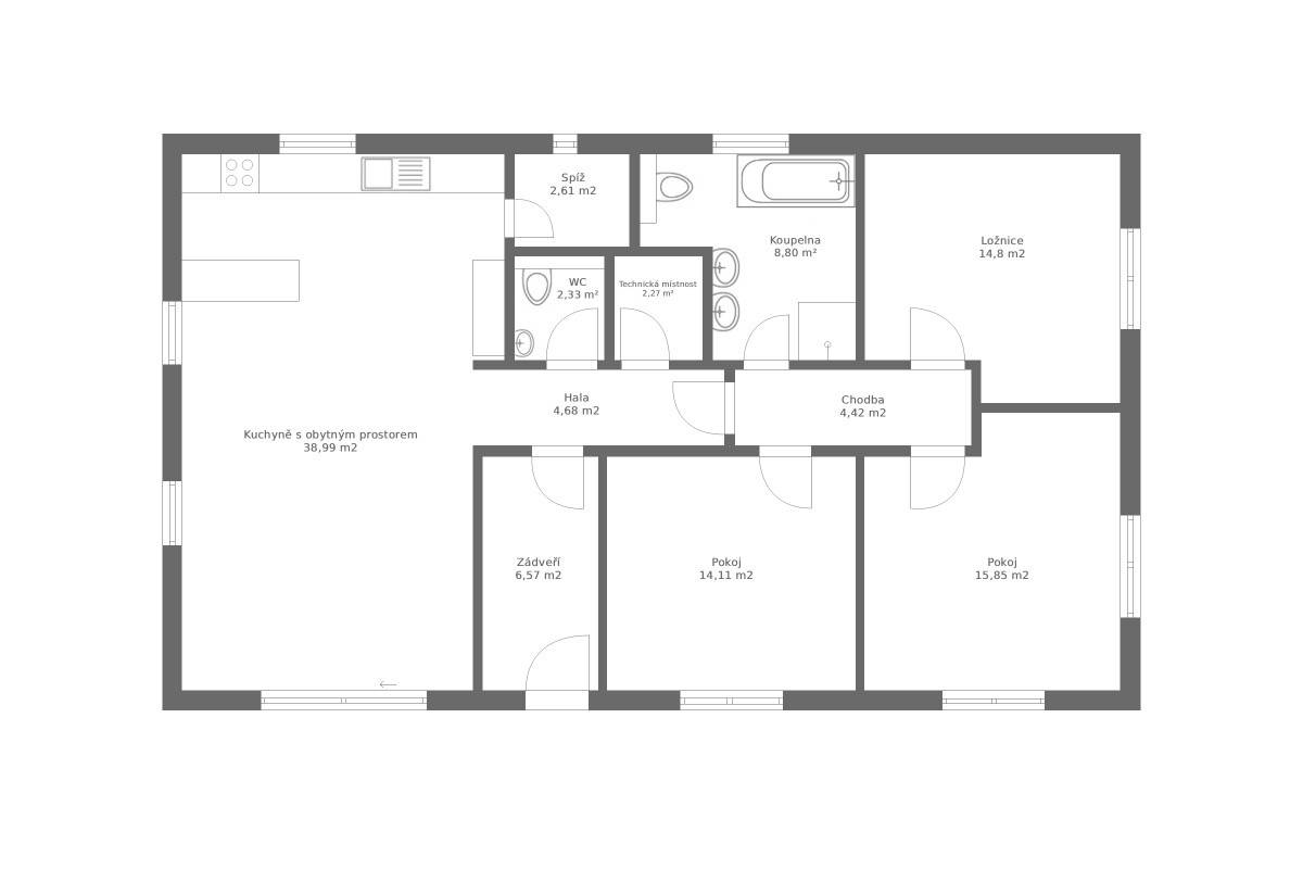
Hlavní obytná místnost jejich domu na důchod zaujímá zhruba 40 metrů čtverečních (je zde obývák, kuchyně a jídelna).


„Kvalita provedení je nadstandardní. Přítel od dcery je perfekcionista, procházel si to tady a zhodnotil to jako velice dobře provedenou práci,“ říká majitel domu.


„Řešil jsem, jestli pořídíme krb nebo krbová kamna. Ptal jsem se několika kamarádů, kteří se v oboru pohybovali, a doporučili mi, ať si dáme krbová kamna, protože jsou jednoduše vyměnitelná,“ říká majitel.


Jelikož Jiří často pracuje u jídelního stolu, druhá pracovna je víceméně nevyužitá.


V domě mají navržené dvě pracovny – jedna je Jiřího a druhá Jany. Na obrázku vidíte tu Janinu.


Vestavěné skříně v ložnici by už nechtěl. Vždy, když ráno vstával do práce, tak rušil manželku, která ještě spala (oblečení si proto musel chystat večer).


Ve velké koupelně vyměnili WC se sprchou a podobné drobnosti, což se oproti původnímu projektu jednoduše doladilo.
15/15


