

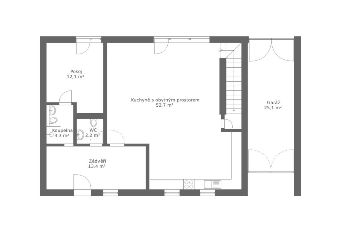
Za vstupními dveřmi najdeme předsíň, kam se pohodlně vejde šest lidí.


Prostornou předsíň si majitelé velmi pochvalují. Je to jedna z věcí, které na dispozici nejvíce vyzdvihují.


Hned z chodby vedou dveře na toaletu.


Do patra vedou dřevěné schody.


V patře mají děti útulné pokoje.


„Ani jsme se nešli podívat na vzorové stavby a neměli jsme ani stavební dozor, šli jsme do toho zkrátka po hlavě,“ vzpomíná Jiří.


Dalším pokojem v patře je ložnice majitelů dřevostavby. Jak můžete vidět, je dostatečně prosvětlená.


Manželé mají v domě dostatek úložných prostor. Chytře pracovali se zkosenými střechami.


V patře se nachází koupelna se samostatně stojící vanou.


V prostorné koupelně se kromě vany nachází také sprchový kout.


Obývací pokoj, jídelna a kuchyně je propojená v jednom velkém prostoru.


„Známí stavěli cihlový dům a táhlo se to opravdu dlouho. Začali jsme stavět dva roky po nich, a zatímco my už jsme zde dva roky bydleli, oni ještě stavěli,“ vysvětluje Jiří


„Máme difuzně uzavřenou konstrukci. Chtěli jsme to udělat, co nejjednodušeji to jde,“ vysvětluje Jiří.


Z obývacího pokoje vedou dveře do takzvaného výměnku. „Výměnek je skvělý, do domu se sice vejdeme i ve větším počtu, ale když si třeba děti přivezou partnery, mají soukromí.“


Kuchyně je dostatečně světlá díky bílé kuchyňské lince a dvěma oknům. Ta vedou na ulici.


V domě je plynový kondenzační kotel a podlahové vytápění v obou patrech. Jako záložní zdroj slouží litinová kamna.


Obývací pokoj, jídelna a kuchyně je propojená v jednom velkém prostoru.


„Dvůr ještě není úplně hotový, ale pomalu se blížíme. Každý rok se udělá něco dalšího,“ říká majitel dřevostavby Jiří.


„Výhodou je, že případné úpravy jsou u dřevostavby mnohem snazší než u zděného domu. Takže když si děti budou chtít dům za pár let předělat, nebude to žádný problém,“ říká Jiří.


Manželé si navrhli vlastní vizi, jak by měl dům vypadat. Tu firma poté optimalizovala.


Majitelé této dřevostavby jsou velkými fanoušky Pána prstenů. Na zahradě dokonce mají hobití noru…


„Do dvora byl také zapracován kotec, ačkoliv jsou psi po povětšinu času doma a v noci střeží spánek v ložnici,“ říká Jiří.


„Líbí se nám, že máme výhled i do ulice. Spousta nových domů okna do ulice prakticky nemá, což mi přijde škoda. Kontakt s lidmi funguje i přes okno,“ vysvětluje Jiří.


„Samotná stavba domu trvala tři dny. Přijelo auto, dovezlo jedno patro, udělal se strop, nabouchalo se druhé patro a mohla se dělat střecha.“


Půdorys 1. nadzemního podlaží


Půdorys 2. nadzemního podlaží
26/26

