

Kdyby shromažďovali dešťovou vodu na pozemku, vybudovali by si závlahový systém, aby jim v létě neschnul trávník.


Nechtěli mít zahradu schovanou, a tak situovali dům na zadní stranu pozemku.


„Měli jsme kliku i s úřady. Paní starostka, stavební úřad i sám pan vedoucí stavebního úřadu nám pomohl, aby to šlo rychle,“ říká Gabriela z Třeboňska.


Rustikální interiér odráží představu majitelky, kterou si nesla 10 let v hlavě.


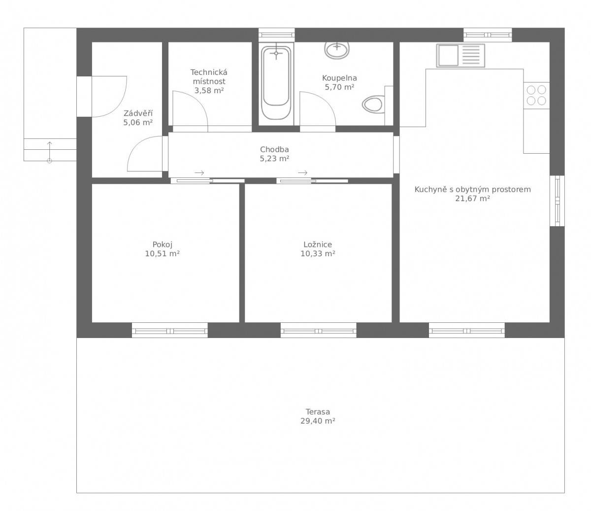
Z centrální chodby v rodinném domě se majitelé dostanou do všech dalších místností.


„Je až neskutečné, jak tento malý prostor může vyhovovat dvěma lidem, kteří nejsou nikterak skromní,“ popisuje majitelka.


„Dům jsem chtěla v takovém starodávném, babičkovském stylu. Stejně tak kuchyni,“ popisuje Gabriela.


Na venkovní terasu se majitelé mohou dostat ze tří pokojů – z obýváku, pokoje pro hosty a ložnice.


Nebyli se podívat na žádný vzorový dům. Systému dřevostavby věřili a představu o svém domě už také měli.


„Za zimu jsme ani na vteřinu nepocítili potřebu mít tu kamna. Náš dům je totiž poměrně malý, krbová kamna by musela mít nízký výkon,“ říká Gabriela.


Úložného prostoru mají v domě poměrně hodně. Byť činí užitná plocha jen 62 metrů čtverečních, nemají problém s prostorem.


Majitelka domu chtěla vanu, její manžel naopak sprchový kout. Nakonec to vyřešili kompromisem.
3/13

