

Dvoupokojový byt s balkonem má vysloveně starou dobrou lázeňskou atmosféru.


Na stěnách je obnažená původní výmalba (byt 2+kk s balkonem).


Zelené židle u jídelního stolu jsou hezkým a přitom citlivě zvoleným akcentem interiéru (byt 2+kk s balkonem).


Původní majitelka zanechala v bytě spoustu předmětů, které se staly součástí zařízení i nových interiérů (byt 2+kk s balkonem).


Díky skleněným příčkám je v chodbách bytů hodně světla i bez umělého osvětlení (byt 2+kk s balkonem).


Byt je zařízený moderně, mnoho původních prvků však architekti ponechali (byt 2+kk s balkonem).


Skleněné příčky propouštějí denní světlo dále do bytu (byt 2+kk s balkonem).


Každý z bytů má svou koupelnu (byt 2+kk s balkonem).


Jeden z dvoupokojových bytů doplňuje balkon.


Z bytů je výhled na hotel Pupp.


Architekti se snažili dopřát každému z dvoupokojových bytů co nejvíce vzdušnosti (byt 2+kk).


Malby na stěnách jsou historické (byt 2+kk).


Zatímco ve dvoupokojovém bytě bez balkonu jsou jídelní židle bílé, v tom s balkonem jsou tmavě zelené (byt 2+kk).


Dvoupokojové byty jsou zařízeny zrcadlově (byt 2+kk).


Kuchyně jsou ve dvoupokojových bytech řešeny velice podobně (byt 2+kk).


Vestavěný nábytek je v bílé barvě, která jej s okolím velmi nenápadně propojuje (byt 2+kk).


Díky proskleným příčkám je i z hloubi bytu vidět okny ven (byt 2+kk).


Koupelny sousedí přímo s ložnicemi (byt 2+kk).


I obklady v koupelnách mají jemně historizující styl (byt 2+kk).


Jednopokojový byt má dlouhou chodbu, do níž je vložena kuchyň (byt 1+kk).


Vestavěný nábytek působí jako by byl v bytech odjakživa (byt 1+kk).


Kuchyňka je řešena minimalisticky (byt 1+kk).


Kuchyňka je pouze ve výklenku chodby vedoucí k hlavní místnosti jednopokojového bytu (byt 1+kk).


V jednopokojovém bytě je hlavní místností ložnice (byt 1+kk).


Malá koupelna jednopokojového bytu je zařízena velice prakticky (byt 1+kk).


V nejmenším bytě je vše menší, tedy i koupelna. Přesto má vše, co je třeba (byt 1+kk).


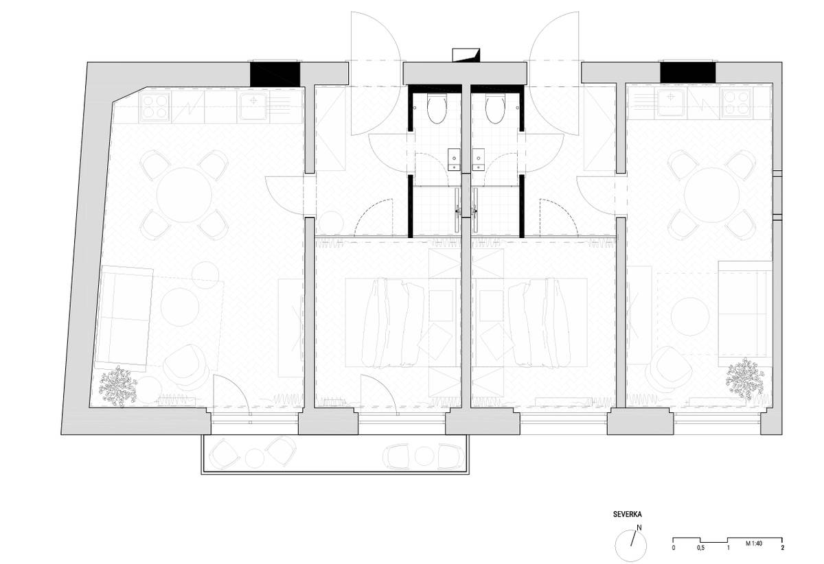
Půdorysy bytů 2+kk a 2+kk s balkonem
1/28

