

„Přípojky byly připravené na hranicích pozemku. Kupovali jsme ho 7 let poté, co už tady okolní domy stály,“ popisují partneři


„Nevýhody dřevostavby oproti zděnému domu nevnímám,“ říká Petr, majitel moderního domu u Prahy


Partneři mají fotovoltaiku (19 panelů) s bateriovým úložištěm (10 kW)


Pracovnu si majitelé domu schválně navrhli zkraje dispozice, aby nebyli rušeni případnými návštěvami toho druhého


Součástí moderní koupelny je vana i sprchový kout walk-in, který si majitelé nemohou vynachválit


„Když jsme přebírali od firmy dům, nebylo vymalováno. Malovali jsme ho sami ve 40 °C a bylo to něco šíleného,“ vzpomíná Jaroslav


Nejvíce úložného prostoru mají na půdě a v hostinském pokoji v podobě vysokých skříní


„Člověk tady musí mít něco hodně nahlas puštěné, aby to přes dveře rušilo,“ popisuje akustiku v domě Petr


Do budoucna majitelé plánují instalovat do ložnice venkovní rolety


U vstupních dveří chybí majitelům dostavět schůdky. Kromě toho mají na domě téměř všechno dodělané


Zahradní pergolu si majitelé velmi vychvalují. V létě báječně stíní a naopak i v sychravém počasí umožňuje sezení venku


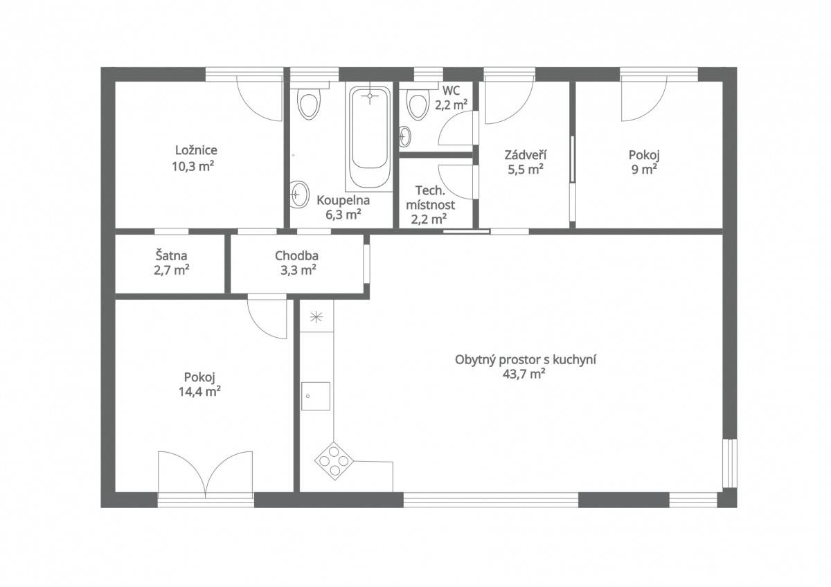
Obytný prostor zaujímá až 43,7 m2 a spojuje kuchyni, jídelnu i samotný obývací pokoj


Dominantou obývacího pokoje jsou stylová krbová kamna z betonových dílů


V létě mají neustále otevřený HS portál, díky čemuž se jim dokonale propojí zahrada s obytnou místností


Kuchyni s obývacím pokojem mají navrženou dohromady. „Chtěli jsme to tak. V bytě jsme měli obývák, kde kuchyně byla za rohem. Když jsme měli návštěvu a člověk něco připravoval, byl schovaný za rohem a nemohl komunikovat s návštěvou. Tady je to takové, že můžeme cokoli připravovat a zároveň můžeme být pořád s návštěvou,“ odůvodňuje Petr


Kuchyň do L doplňuje ostrůvek


Dům je vytápěný podlahovým topením a také těmito krbovými kamny
8/19

