

Většina nábytku je vyrobena z dýhy v dekoru přírodního dubu.


Ostrůvek kuchyně je obložen kalkatským mramorem, který dobře ladí s litou polyuretanovou podlahou.


Každá ze stran „kostky“ je pokryta jiným materiálem.


Designérka velice hezky vymyslela tvar skříně v dětském pokoji, která kopíruje tvar stropu a díky tomu vypadá jako domeček.


Pracovní stůl a úložné prostory v dětském pokoji jsou spojené do jednoho celku.


Ložnice majitelů je zasazena do podkroví.


Prosklená štítová strana domu umožňuje výhled a spoustu světla i v ložnici umístěné v podkroví.


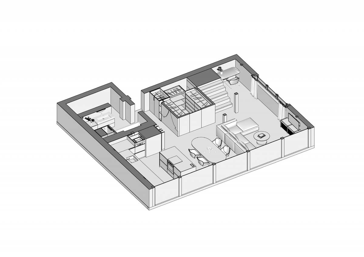
Trojrozměrný nákres uspořádání bytu - spodní podlaží


Trojrozměrný nákres bytu - horní podlaží


Půdorys bytu - spodní podlaží


Půdorys bytu - horní podlaží
3/11

