

Markéta s Jaroslavem už čtyři roky žijí ve svém novém domě a my jsme nahlédli dovnitř.


Rychlost prodeje pozemků byla neuvěřitelná. Všechny se prodaly asi za dvě hodiny.


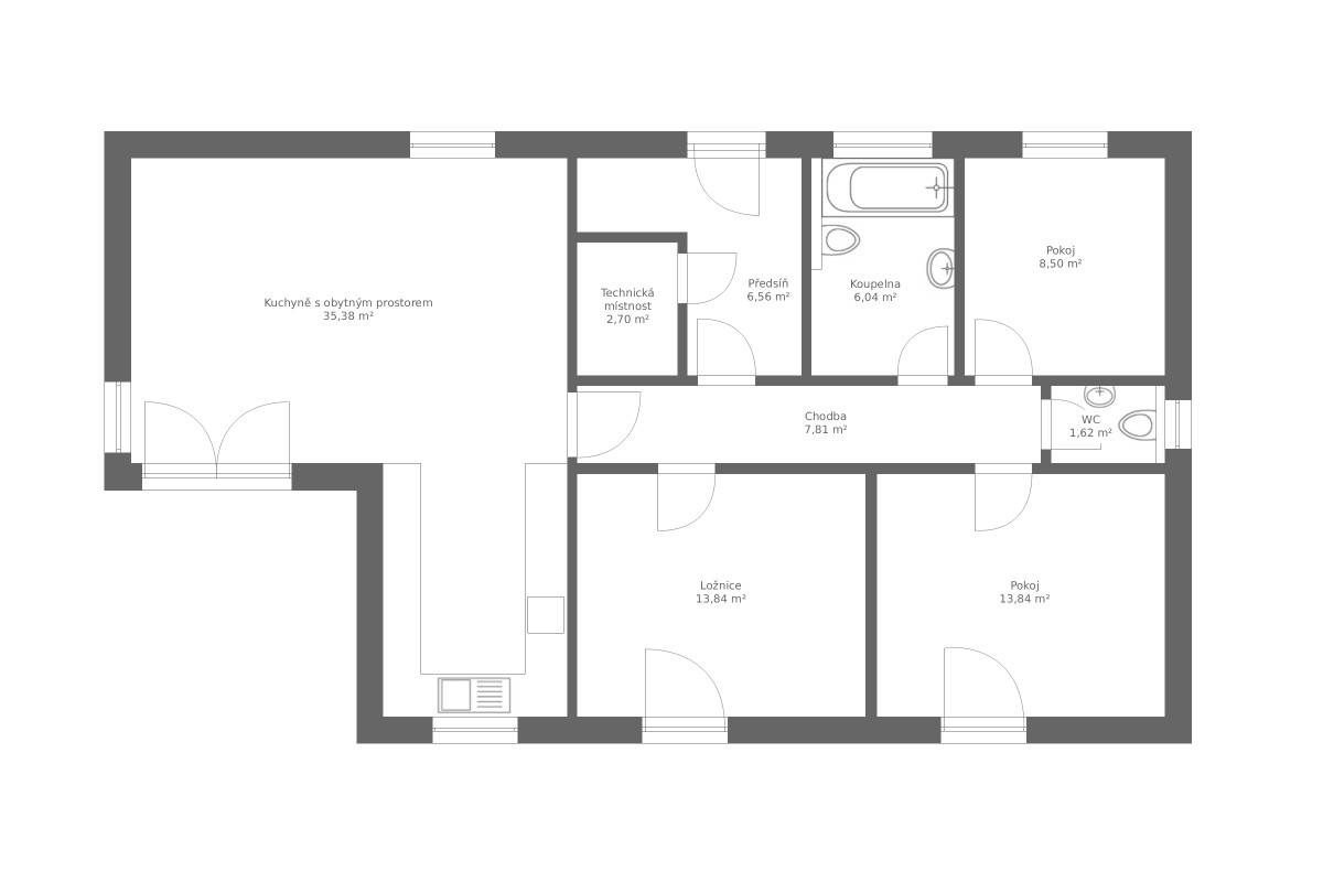
Po vstupu do domu se ocitneme v předsíni s botníkem a skříní.


Na předsíň navazuje chodba atypického tvaru. Z ní vedou dveře do jednotlivých místností.


Z jedné místnosti udělali manželé šatnu. Když je nouze, dá se v ní nafouknout jednolůžko, což vnučka bere jako bojovku.


Majitelé jsou spokojení s podlahovým topením. Když přijdou z práce domů, není jim zima od nohou, což je obzvláště příjemné v koupelně.


V koupelně se nachází moderní topný žebřík.


Pokoj pro hosty je v zadní části domu, což je praktické kvůli soukromí.


Markéta: „Po bydlení v paneláku jsme tady ze všeho hodně natěšení, hodně si to tu užíváme a vše opečováváme.“


„Manžel zapálí dvě brikety v krbu a je tu za chviličku teplo a útulno jako na chalupě,“ říká Markéta.


Nejdříve si majitelé udělali linku a mysleli si, že vhodný nábytek dokoupí v řetězcích. Nakonec zjistili, že ten správný nábytek si budou muset nechat vyrobit na míru.


Jaroslav: „U kolaudace jsem byl jen já. Přišel starosta, člověk ze stavebního úřadu a majitel stavební firmy. Prošli to, nikde žádná závada. Pak nám popřáli hezké bydlení a odešli.“


Největší místností celého domu je obývací pokoj.


Oproti typovému návrhu je v ložnici o jedno okno méně. Přibylo ovšem francouzské.


Dům si majitelé kvůli financím zmenšili asi o 10 cm na každé straně, čímž ušetřili na střeše, základové desce i pokládce.
16/16

