

Z obývacího pokoje je výhled na zahradu.


Kuchyňská linka nabízí velké množství úložných prostor.


Spodní patro lze velmi snadno propojit s exteriérem.


Na střeše nechybí solární panely.


V horním patře je možné relaxovat na menší terase.


Schodiště je kompletně obložené dřevem.


Ložnici vládnou zemité tóny.


Botník je kombinován s lavicí, na kterou se můžete při obouvání posadit.


Obyvatelé mají k dispozici menší zahrádku.


Koupelně vévodí obklady v teplém tónu.


Architekt si dal záležet, aby i toaleta s koupelnou působily světlým dojmem.


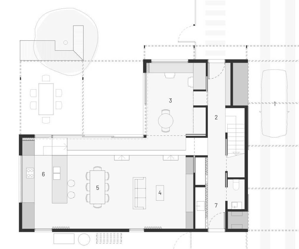
Nákres ilustruje uspořádání místností v přízemí.


Plánek prozrazuje uspořádání místností v patře.
9/13

