

Na kuchyň přirozeně navazuje jídelní kout.


Kuchyň působí moderně a je prosvětlená.


Do centrálního boxu jsou na straně kuchyně chytře umístěné některé spotřebiče.


Skříňky kuchyňské linky mají povrch z nerezu.


Architekt v bytě odstranil příčky a hlavní obytný prostor ponechal propojený.


Interiér bytu je zařízený ve světlých barvách.


Kromě vany se do koupelny vešel i prostorný sprchový kout.


Bezzárubňové dveře sahají téměř až do výšky nosného systému.


V centrálním prostoru bytu je kubus, ve kterém je ukryta koupelna.


Nově vznikly v bytě kromě ložnice i dva stejně velké pokoje.


Napříč bytem se táhne obnažený nosný systém.


Axonomické zakreslení nové podoby bytu


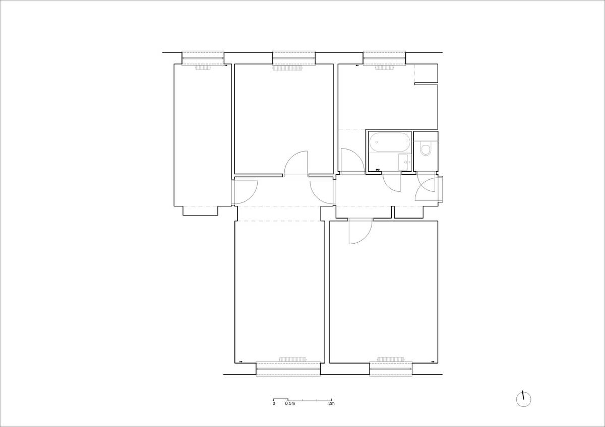
Půdorys nové podoby bytu


Půdorys původní podoby bytu
12/15

