

Obytná část je volně propojena s terasou, takže máte pocit, že jste stále venku. Nechybí kuchyň s grilem, včetně venkovní jídelny


V jídelně je nepřehlédnutelný velký stůl z jasanového masivu a nad ním osvětluje plochu stolu designové osvětlení


Podlahy v moderním domě jsou z bračského kamene a vizuálně sjednocují celý interiér


V chodbě si lze lenošit v digitálně vytvořené designové jeskyni ve stěně, artefaktu z výstavy. Architekt ji vsadil na útvar pokrytý skelným vláknem


Horní podlaží je s přízemím propojeno protilehlým dvojramenným schodištěm se skleněným zábradlím


Dům je naplněný uměním, které v minimalisticky pojatém domě hraje prim


Nadzemní podlaží poskytují prostory pro ložnice, včetně navazujících koupelen. Ty jsou uzpůsobeny potřebám jednotlivých členů rodiny


Půdorys prvního nadzemního podlaží. Dům na pozemku svažujícím se k jihu má půdorys ve tvaru písmene C. Díky tomu poskytuje majitelům dokonalé soukromí, ale přitom se v něm necítí uzavřeni


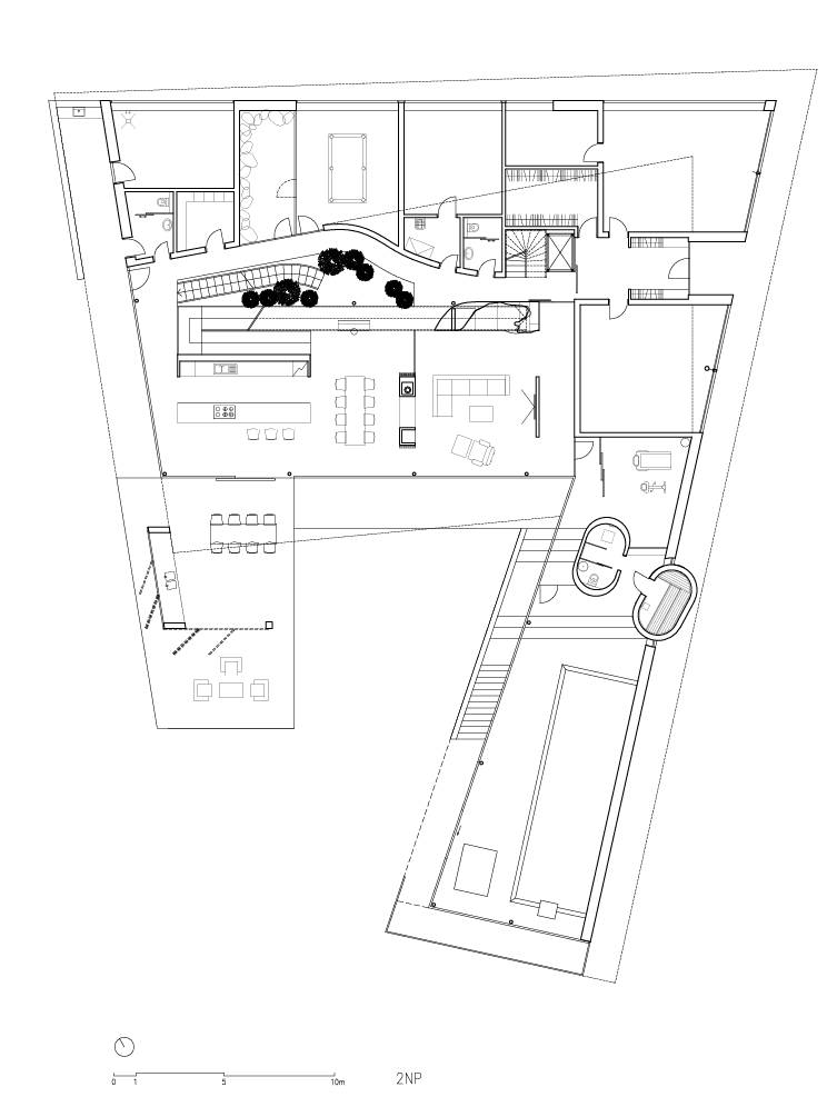
Půdorys druhého nadzemního podlaží
9/9

