

Majitel si nechal postavit srub 3+kk k trvalému bydlení v Beskydech


Jediné nařízení od obce se týkalo minimální velikosti pozemku


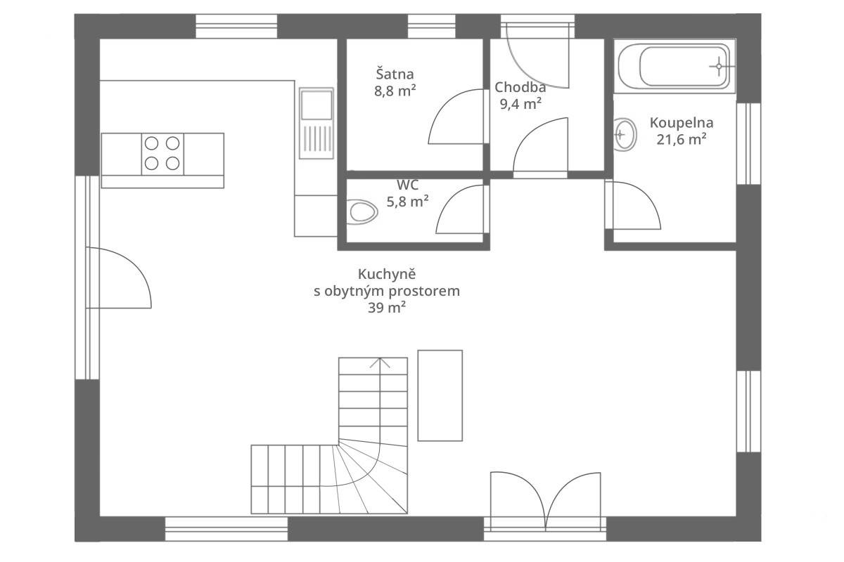
Vnitřní užitná plocha tohoto srubu je 115 metrů čtverečních


V místě, kde si majitel nechal postavit svůj srub, dokonce už jeden stojí, žádný problém ze strany obce tudíž nemusel kvůli zvolenému typu stavby řešit


Detail rohového zakončení srubového domu


Velké přesahy střechy mají i svůj praktický význam – chrání dřevěný dům před sluncem a deštěm


Venkovní jednotka tepelného čerpadla vzduch-vzduch působí u srubového domu výrazně


Hlavní vstup do srubového domu


I ve srubu lze koupelnu vyřešit stylově a moderně


Samostatné WC je nedaleko vstupu do domu, v přízemí je všude dlažba


Instalace vedou husími krky, na kuláčích bylo už předem přesně zakresleno, kde budou


Detail jutového provazu, který zdobí spáry mezi jednotlivými kuláči


Společnému prostoru dominuje krásné srubové schodiště se zábradlím


Kuchyně je v moderních barvách (bílá a šedá) a má jen spodní skříňky


V interiéru krásně vynikne masivní dřevo a jeho přirozená textura


Obývací pokoj s pohodlným posezením a krásným výhledem ven


V obývacím pokoji se nachází dvě topidla – kachlová krbová kamna (6 kW) a biokrb (3 kW)


S biokrbem je majitel nadmíru spokojený. Používá ho poměrně často, protože dům krásně, rychle a dostatečně vytopí


„Se schodištěm jsem nadmíru spokojený. Přestože je celé z masivu, vůbec nevrže,“ pochvaluje si majitel Lukáš


Detail srubového schodiště z půlkuláčů


V horním patře je i balkon a malé posezení


Na chodbě v podkroví jsou i úložné prostory


Ložnice majitele je otevřená a hezky prosvětlená


Z postele má Lukáš přímo výhled ven na zahradu a okolní hory


Dětský pokoj pro dceru je prostorný (původně tu měly být dva menší pokojíčky)


Dcera má dostatek místa pro učení i hraní
14/28


