

Zahradní domek majitelé postavili do již zavedené zahrady s hustou obytnou zástavbou. Přesto má své soukromí


Pavilonek zastiňuje část pozemku od jihu a poskytuje prostor pro příjemné venkovní, kryté posezení


Součástí interiéru je malá, plně vybavená kuchyňská linka se zabudovanou ledničkou a kávovarem. Má podobu skříňky se šesti zásuvkami v čistě bílé barvě


V užší lichoběžníkové části je místo pro cyklotrenažér a běžecký pás. Orientovaný je čelem do zahrady


Prostorná finská sauna je z exotického dřeva Thermo osika. Vedle se nachází místnost se sprchou a toaletou


Posuvné hliníkové dveře fungují i jako vstupní. Samozřejmostí je oboustranný zámek


Prosklená okna mají odolné hliníkové profily, které jsou prakticky bezúdržbové, výborně odolávají vlhkosti


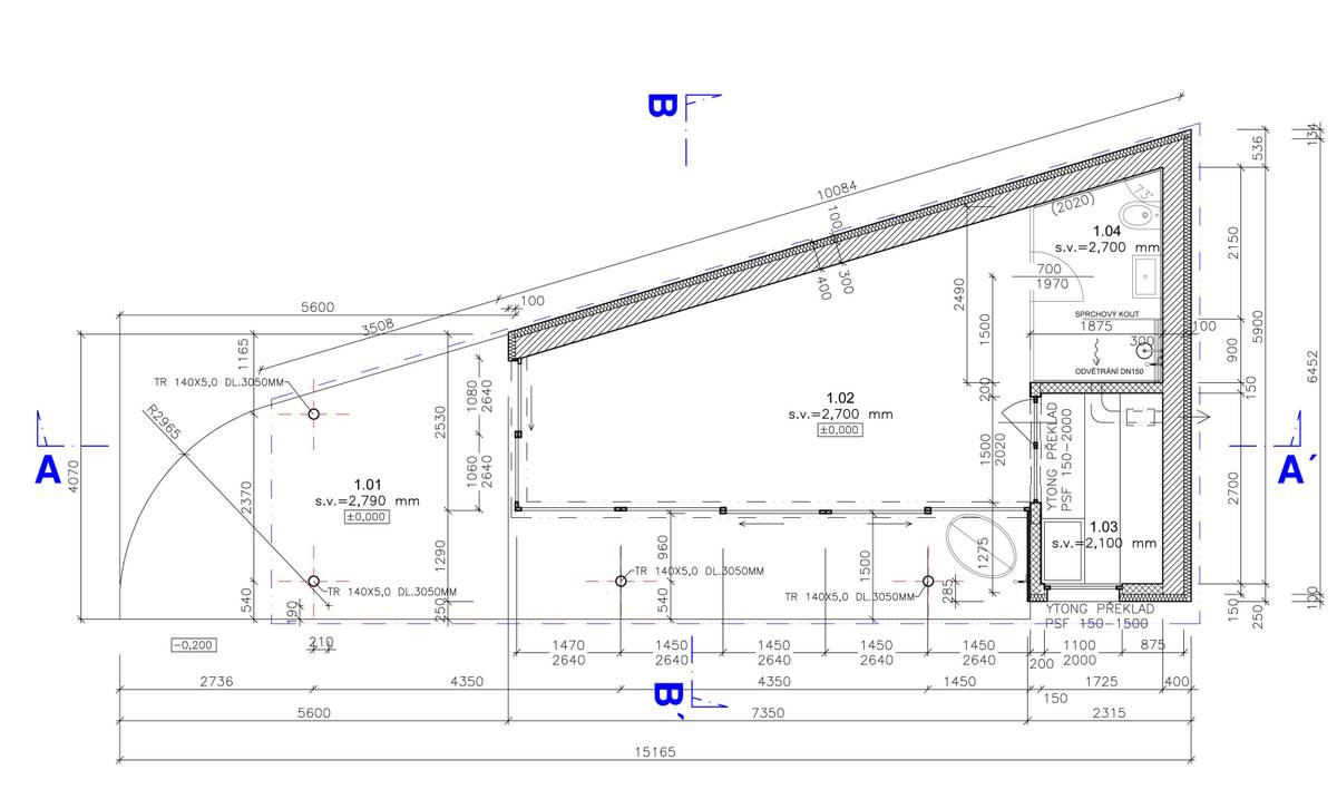
Půdorys: 1.01 terasa, 1.02 pobytová, 1.03 sauna, 1.04WC+umývárna
4/8

