

Kuchyň doplňuje jídelní stůl s lavicemi.


Zelené obklady s růžovou spárovačkou vytvářejí hezký živý akcent za pracovními plochami v kuchyni. Dřevěné linky březové překližky dodávají prostoru teplo a jemnost.


Kuchyni dominují zelené obklady s růžovou spárovačkou. Dřevěné linky březové překližky dodávají prostoru teplo a jemnost.


Klíčem k úspěchu bylo propojení kuchyně, obývacího pokoje a haly, čímž vznikl vzdušný a světlý centrální prostor, kde se rodina může přirozeně setkávat a komunikovat.


Sport v této rodině hraje důležitou roli a bylo jasné, že i interiér musí reflektovat aktivní životní styl jeho obyvatel.


Vestavné úložné prostory, posuvné panely a konzolové policové systémy umožňují efektivní organizaci bez zbytečného zahlcení prostoru. Magnetická tabule je středobodem rodinného života.


Průhled přes obývací pokoj do ložnice s pracovním koutem


Ložnice rodičů vznikla ubráním prostoru z obýváku.


Pokojíček pro syna zdobí pestrobarevné roletky, které zároveň zakrývají úložné prostory.


Dětský pokoj na míru pro dceru s kosmetickým stolkem.


Toaletě dominuje růžový obklad s modrou spárovačkou.


Růžové roletky efektivně řeší úložné potřeby a zakrývají niku s pračkou a sušičkou.


Koupelnu charakterizuje modrý obklad se zelenou spárovačkou.


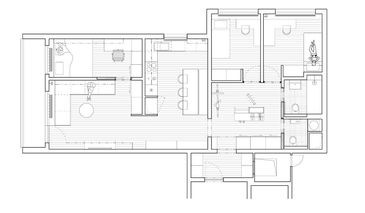
Půdorys bytu v nové podobě


Půdorys bytu v původní podobě
15/15

