

Cílem architektů bylo začlenit dům co možná nejnenápadněji do okolní lesnaté krajiny.


Než aby stavba bojovala s přírodou, snaží se jí naopak přizpůsobit.


Stavbu na pozemku doplňuje terasa s bazénem.


Pod domem vede koryto se dnem vyskládaným oblázky, kudy na jaře odtéká voda z tajícího sněhu.


Stavba nemá přesahy střech.


Z bazénu je skrz hradbu stromů vidět záblesky vodní hladiny fjordu.


O světlost interiéru se zasluhují vysoká trojitá okna sahající od země ke stropu.


Díky velké ploše působí interiér velice příjemným a volným dojmem.


V kuchyni je k dispozici spousta odkládací plochy.


Interiér je v hlavní obytné místnosti členěn různými výškovými úrovněmi.


Dům je začleněn do zalesněné krajiny.


V obývací části jsou dvě dominanty, televize a krb.


Detaily v kuchyni jsou ve zlaté barvě.


Světlé tóny pěkným způsobem doplňují tmavé odstíny zelené.


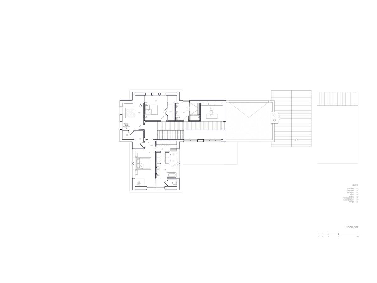
V horním podlaží jsou ložnice členů rodiny.


Postele s dřevěnými parapety přispívají k útulnosti interiéru domu.


V patře jsou pokoje rodičů a dětí.
3/20



