

Vstup do domu vede skrz prosklené dveře.


Pohled od vchodových dveří.


Stěna z bílých latí plní svou dělicí funkci, zároveň však působí lehce a propouští světlo.


Výklopné kolíky proměňují běžnou stěnu v šatní.


S černými rámy dveří a oken je sladěna barva klik na dveřích.


Velice praktický detail - sprcha přístupná i ze zahrady


Přiznaný betonový strop zůstal i v koupelně.


Kalkatský mramor dodává interiéru tu pravou porci elegance a luxusu.


Velká okna mají černé rámování, které oživuje jinak striktně světlý interiér.


Majitelé oslovili architektky ve fázi hrubé stavby domu. A vyplatilo se.


Jídelní prostor doplňuje dřevěná lavice při stěně.


Výklopné prvky se objevují na více místech domu.


Jídelní prostor ozvláštňují svítidla se skleněnými stínidly.


Architektky a majitelé se shodli na přiznaném betonovém stropu.


V interiéru vládnou jednoduché linie, nezřídka organických tvarů.


Kuchyň díky skrytí spousty věcí působí velice čistým a minimalistickým dojmem.


Stačí otevřít panel a objeví se úložné i pracovní prostory.


Za panely v kuchyni je schovaná většina funkcí.


Krbová kamna jsou na dřevo. V obývací části pokoje je připraven elegantní zásobník.


Z obývacího pokoje lze vyjít rovnou do zahrady.


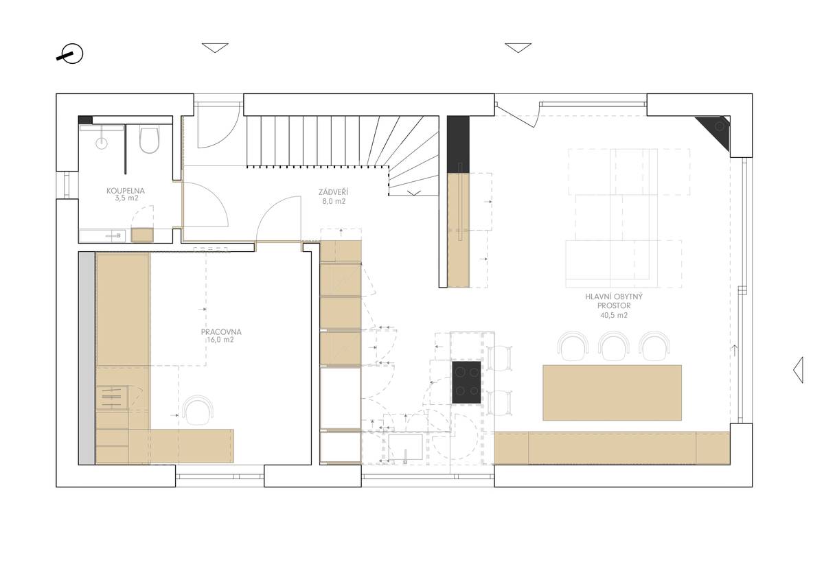
Půdorys obytné části domu
3/21

