

15/16


Místnost na kuchyňskou a jídelní zónu rozděluje ostrůvek, vizuálně tyto dva prostory odlišuje i rozdílný vzhled svítidel.


Přední část kuchyně, která je blíže oknům, je vyhrazena pro jídelní zónu.


Barva nábytku se v různých částech bytu sice liší, ale styl zůstává všude stejný.


Jídelní stůl je vyrobený na míru. Ve stejném stylu je vyrobený i stůl v pracovně.


Hrany nábytku nejsou klasicky zakončené do pravoúhlého rohu, ale šikmo sražené, čímž vznikají elegantní fasety. Ty jsou propojujícím rysem nábytku v bytě.


Ostění oken je zdobené kazetovými obklady. Ty se staly inspirací pro vzhled nábytku v celém bytě.


V obývacím pokoji zaujme solitér v podobě křesla vyrobeného podle návrhu architekta Adolfa Loose.


Nábytek v bytě je vestavěný, má jasnou mřížku se skosenými hranami a tu vyplňují kazety s různými povrchy. Velice jemně působí například zlatavý perforovaný plech.


Stůl v pracovně je ve stejném designu jako jídelní stůl v kuchyni. Vysoké stropy v bytě umožnily vytvořit v pracovně patro se spaním pro hosty.


Pohled z patra není pro lidi se sklony k závratím. U majitelů budou moci přespávat jen mrštní hosté.


Funkci čela postele plní obklad z polstrovaných panelů.


Úložné prostory v podobě vestavěných skříní roubí dveře, jejichž ostění je stejně jako u oken obkládané kazetovými panely.


Ložnici osvětluje lustr ve stylu lampionů.


Styl panelů na stěně v ložnici je stejný, jako styl nábytku v bytě. Hezkým detailem je pak sladění všech svítidel v místnosti.


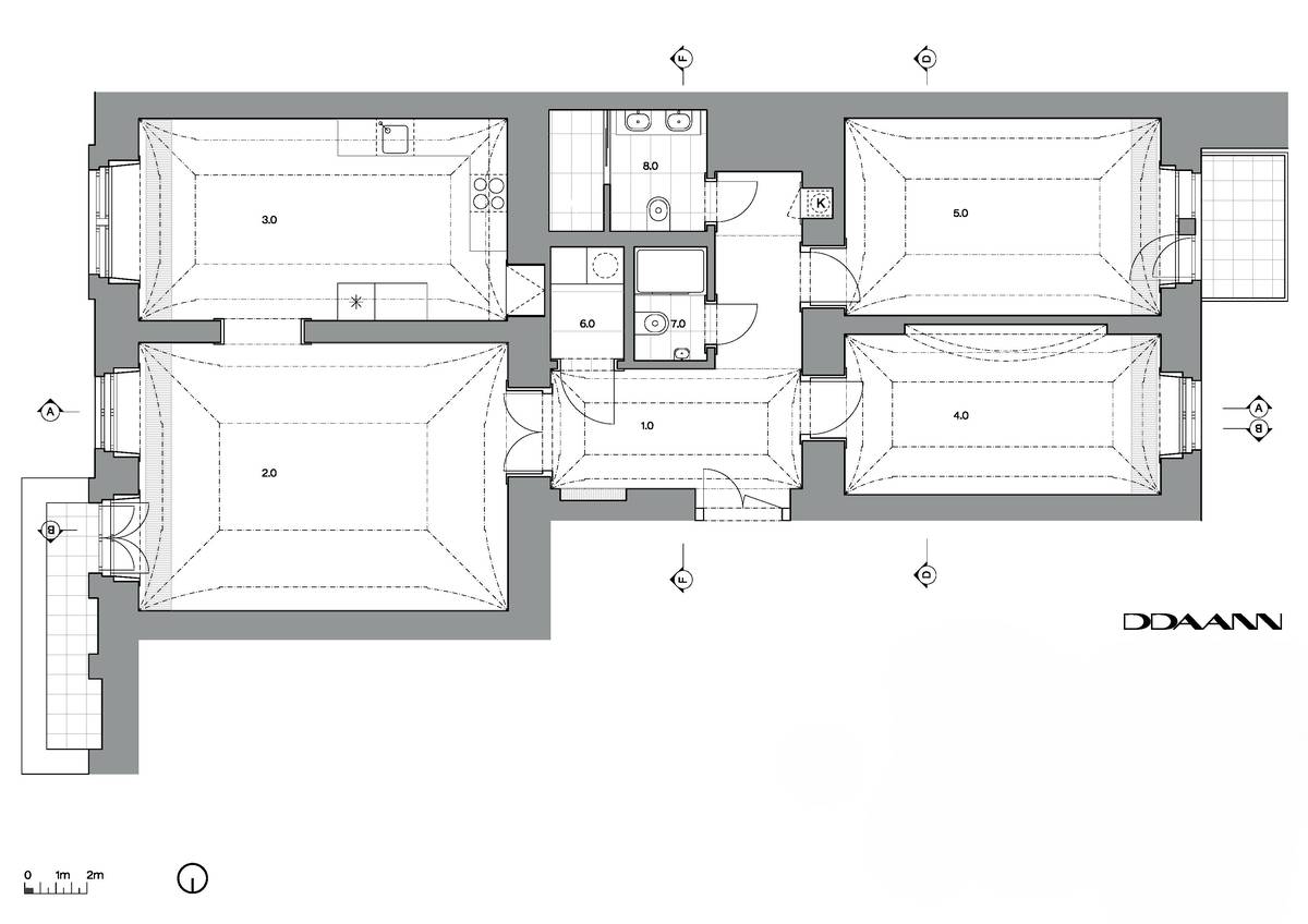
Půdorys bytu - nová podoba


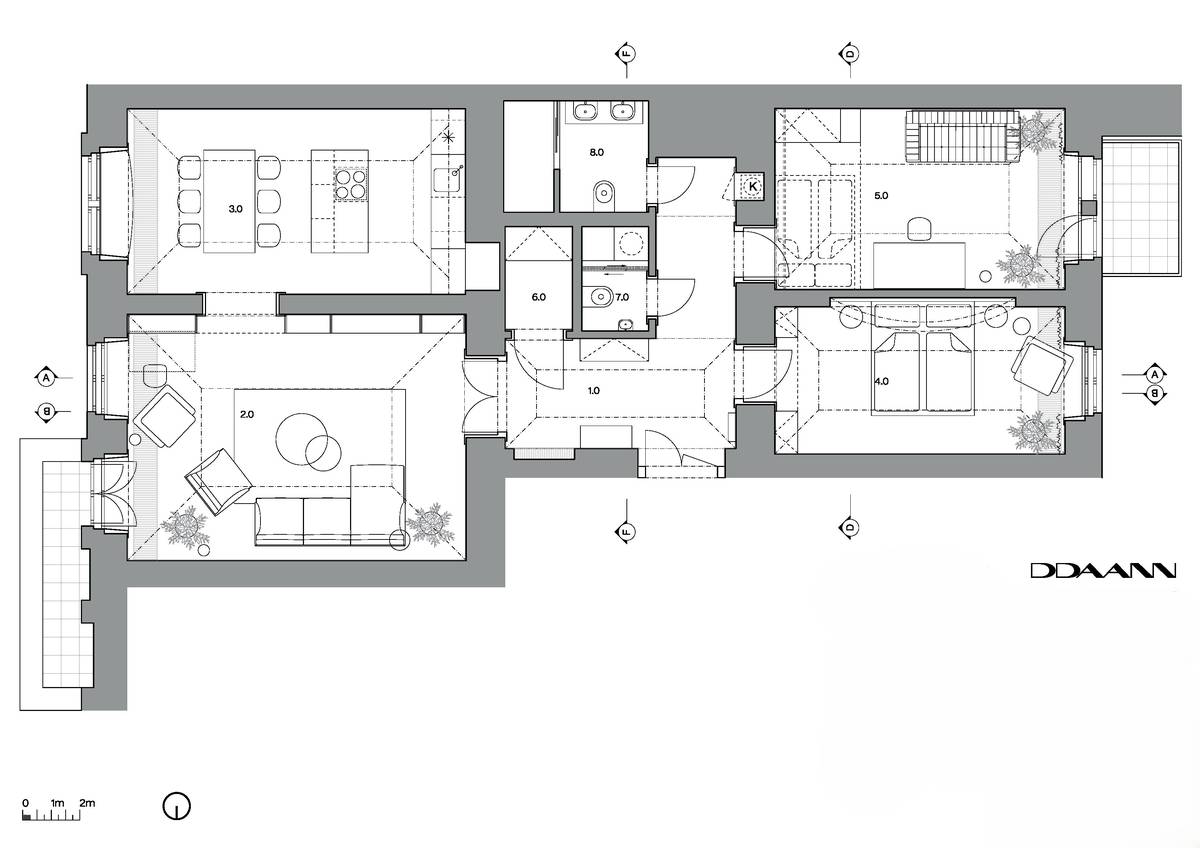
Půdorys bytu - původní podoba
15/16

