

6/6


Zastřešená terasa umožňuje pobyt na čerstvém vzduchu i v nepříznivém počasí.


Pohled z kopce prozrazuje začlenění stavby do půvabného okolí.


Stavbě vévodí dřevěný obklad.


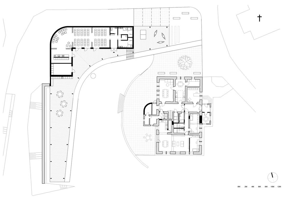
Nákres zobrazuje uspořádání místností v přízemí.


Z nákresu je patrné umístění stavby do terénu.


Pohled na stavbu z ptačího pohledu ukazuje půvaby okolních staveb.
6/6

