

1/8


Úložný prostor táhnoucí se podél celé pravé stěny slouží zároveň jako lavice u jídelního stolu.


S lamelovým podhledem architekti sladili zařízení kuchyně.


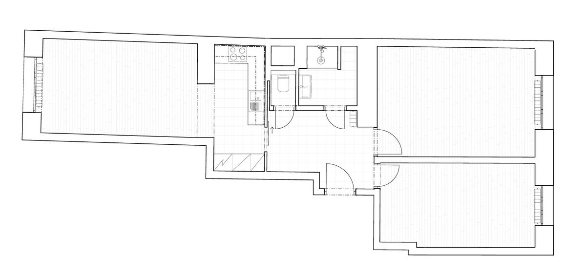
Kuchyňský kout má linku uspořádanou do písmene L.


Pohled z ložnice do chodby


Lineární osvětlení na podhledu hosta automaticky vede směrem k srdci domova.


Posuvné prosklené dveře jsou praktické, propouštějí světlo, propojují oba prostory vizuálně, navíc nezabírají tolik místa jako klasické otočné.


Ložnice je jedním ze dvou soukromých pokojů v bytě.
1/8


