

10/13


Obývací pokoj vybízí k odpočinku s výhledem do přírody.


Na obývák navazuje terasa.


Stavba má typický šumavský ráz.


Okenice je možné plně zatáhnout i odkrýt.


V kuchyni se prolíná tradice s modernitou.


Stodola dostala velmi moderní háv.


Dřevěná fasáda ladí s okolím.


Minimalistické schodiště působí domácky.


V podkroví se nachází uzavíratelná kuchyňka.


Kuchyňka je malá, ale na občasné vaření stačí.


Na půdě se nachází útulný pokojík.


Nákres ilustruje uspořádání přízemí.


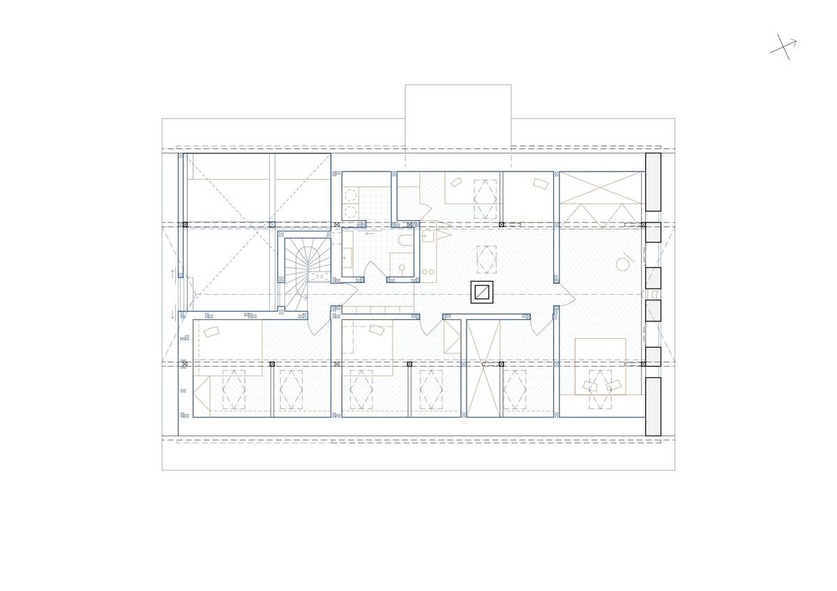
Podkroví skrývá hned několik ložnic.
10/13

