

18/18


Dům je postavený tak, aby byl pružný. To může ale za silného větru ve slabších povahách vzbuzovat nejistotu.


Dřevěné boxy působí, jako by na chatu byly dodatečně nalepené.


Chata těží z nádherného prostředí. Ne nadarmo je v okolí spousta pronajímaných objektů.


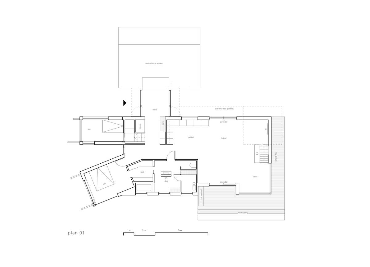
Vstup do chaty je v místě napojení přístavby na hlavní část domu.


Z oken chaty je výhled na fjord.


Hlavní obytná část chaty


Chata má i venkovní prostory, které hezky doplňují a rozšiřují interiér.


Některé části domu mohou být při silném větru poněkud pohyblivé, to však bylo záměrem architektů.


Velká okna přivádějí do interiéru spoustu světla. To je v této severské oblasti hodně důležité.


Nákres zadní (východní) strany


Nákres severní strany


Přístavba je umístěná na jižní straně domu.


Na tomto nákresu fasády je nejlépe patrný trik s posunutím hřebene nové stavby tak, aby celek i s přístavbou působil symetricky.


Návrh vypadal velmi nevšedně už ve fázi modelu.
18/18




