

3/17


„Po úklidu balkonu jsme navezli dřevěné palety, které dokáží být vděčné dlouhou dobu. Na palety jsme položili bavlněný přehoz a polstry v barvě café cappuccino. Dále jsme umístili jutový koberec na podlahu, vzrostlou květinu ve velkém proutěném květináči, kovový odkládací starorůžový stolek, obraz na stěnu,“ popisuje proměnu lodžie architektka.


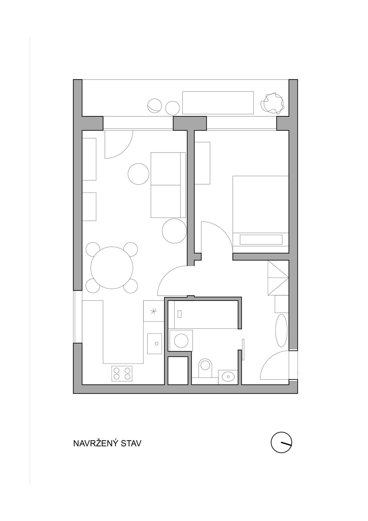
Na stěně je závěsná televizní skříňka od truhláře. Slouží pro uschování přístrojů a kabelů pro televizi.


Na podlaze obývací části je položen kusový koberec z pravé vlny, který je svazován do „uzlů“ a navozuje pocit domácké atmosféry.


Stůl je doplněný čtyřmi jídelními židlemi v přírodní barvě. Mají kovové nohy a čalounění v odstínu tmavě béžové. Celá jídelní sestava je podložena kruhovým kobercem z přírodního materiálu o průměru 180 cm.


Na komodě jsou umístěny dva výrazné květináče petrolejové až smaragdově zelené barvy.


Komoda je přechodovým prvkem mezi jídelnou a obývákem. Slouží pro úschovu věcí nebo vystavení jídelního servisu a knížek. Tím, že je prosklená, je velmi vzdušná, zároveň však zamezuje zaprášení vystavených předmětů.


Jídelní stůl je vyroben z dubového dřeva a je umístěný v ose středu vstupní chodby, má průměr 120 cm. Nad stolem je zavěšený designový skleněný lustr s kovovými poniklovanými detaily.


Veliké výrazné úchytky na spodních dvířkách nahradily kulaté bodové uzly.


„Kuchyně zůstala původní. Vyčlenily jsme s paní majitelkou pouze určitý finanční obnos, který do kuchyně vložíme, a v rámci toho jsme kuchyni upravily,“ říká architektka.


V chodbě je vysoká vestavná skříň od truhláře smetanové barvy. Ta slouží pro veškeré hlavní oblečení. Designovým prvkem je sametová odkládací lavice pudrové barvy s kovovou podnoží.


Protože je v bytě strop relativně nízký, snažila se architektka v chodbě zvýraznit vertikálu. Obložila tedy koupelnové jádro dřevěnými lamelami natřenými smetanovým odstínem. Lamely jsou rozmístěny po stěně s rozestupy a jsou prvkem, který navozuje pocit přírodního prostředí.


Koupelna a toaleta jsou spojené. Protože místnost nemá okno, architektka se snažila využívat jen světlé materiály a barvy, ovšem tak, aby prostor nebyl bílý nebo šedý a nepůsobil chladně.


Ložnice je zařízena minimalisticky.


Původní stav - ložnice a koupelna


Původní stav - obývací pokoj a kuchyň
3/17



